Asys有限会社エイシス
開業物件情報
エイシス無料会員登録
薬剤師登録
開業までのながれ
開業Q&A
実績紹介
お問い合わせ
優良物件募集中
会社概要
リンク集


開業物件情報
ホーム ホーム開業物件情報
 
ナカジマジュネビル

No. 1810-104 掲載日

2018/10/20

名称 ナカジマジュネビル
取引形態 賃貸
所在地 兵庫県姫路市亀井町46
交通 JR姫路駅・山陽電鉄姫路駅より徒歩5分
適正科目 神経内科・心療内科・耳鼻咽喉科・皮膚科
コメント JR姫路駅・山陽電鉄姫路駅から姫路城に向かうアーケード商店街に面していますおしゃれなビルです。雨天時でも傘無しで往来が可能です。2016年以降、周辺には新築マンションが多数分譲されており、医療需要が見込まれます。また当物件は、姫路市の中心地商店街空き店舗対策の対象区画内となっておりますので、条件を満たせば2年間家賃補助等の助成が受けられます。
面積・賃貸料
など
(賃貸料・管理費・共益費には別途消費税が必要です)
階数 面積 賃貸料 管理費 敷金
共益費 保証金
1F 27.5坪 応相談 30,000円 応相談
2F 35.5坪 応相談 20,000円 応相談
*賃貸料・敷金については、ご相談に応じますので、お問い合わせください。
構造 鉄骨造4階建て
築年月 昭和44年6月
*築年数は経年していますが、メンテナンスはしっかりしています。
附帯設備 エアコン・トイレ・湯沸室あり
物件形態 ビルテナント
引渡し形態 スケルトン
状況 2Fは現在空いており、1Fは2018年12月末で空き予定。
歯科が開業しており、盛況です。
特記事項  
お問い合わせ
有限会社エイシス TEL・FAX:078-753-7723
  携帯電話:090-2063-2800(青木)
  電話かお問い合わせフォームからのメールでお願いいたします。

※ お問い合わせいただいた時点で、既に物件が決定済みの場合もございます。悪しからずご了承下さい。

ナカジマジュネビル
 

クリックすると拡大します。

 

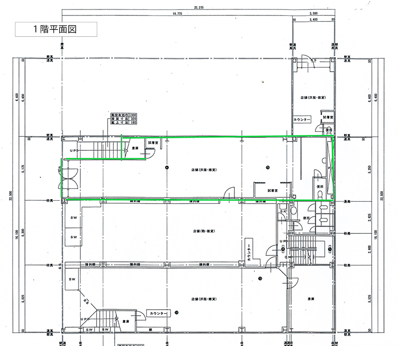
ナカジマジュネビル
1階平面図

 

クリックすると拡大します。

 

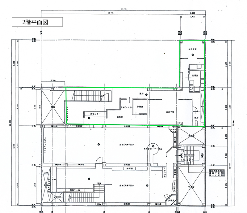
ナカジマジュネビル
2階平面図

 

クリックすると拡大します。

         
 

 



   
 
開業物件情報に戻る

ページの先頭へ
有限会社 エイシスのホームへ
Asys 有限会社エイシス
〒655-0854 神戸市垂水区桃山台1-20-7
TEL・FAX 078-753-7723
2004 © Asys Inc. All rights reserved.